• Projects
  • School Projects
  • Process
  • About
  • Contact
Menu

Linda Brothwell

Street Address
City, State, Zip
515.868.1607
Linda Brothwell.design

Your Custom Text Here

Linda Brothwell

  • Projects
  • School Projects
  • Process
  • About
  • Contact

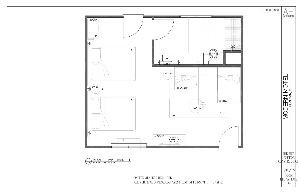
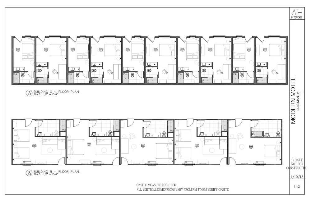
AHI - Modern Motel

This project is the remodel of a landmark motel in Bozeman. It was a lot of fun to work on.

Using CAD I drew the cabinet elevations and details for the vanities and wet bars. In addition, the drawings include furniture plans and elevations as well as lighting elevations and tile layouts. Using Revit I designed the custom daybed for Building C and the breakfast

bar for Building D.

AHI - Modern Motel

This project is the remodel of a landmark motel in Bozeman. It was a lot of fun to work on.

Using CAD I drew the cabinet elevations and details for the vanities and wet bars. In addition, the drawings include furniture plans and elevations as well as lighting elevations and tile layouts. Using Revit I designed the custom daybed for Building C and the breakfast

bar for Building D.

RSVP Plans and Elevations-1.jpg
Building A

Building A

Buildings B & C

Buildings B & C

Building D

Building D

Typical Bathroom Layout

Typical Bathroom Layout

A1 & A4 Rooms

Typical Bathroom Layout

Typical Bathroom Layout

A2 & A4 Rooms

Typical Bathroom Layout

Typical Bathroom Layout

A3 Rooms

Typical Bathroom Layout

Typical Bathroom Layout

A6 Bathrooms

Typical Bathroom Layout

Typical Bathroom Layout

B1, B2, B3 Rooms

Typical Bathroom Layout

Typical Bathroom Layout

B4 Rooms - ADA

Typical Bathroom Layout

Typical Bathroom Layout

RSVP Plans and Elevations-12.jpg
RSVP Plans and Elevations-13.jpg
RSVP Plans and Elevations-14.jpg
RSVP Plans and Elevations-15.jpg
RSVP Plans and Elevations-16.jpg
RSVP Plans and Elevations-18.jpg
RSVP Plans and Elevations-20.jpg
RSVP Plans and Elevations-21.jpg
RSVP Plans and Elevations-23.jpg
RSVP Plans and Elevations-24.jpg
RSVP Plans and Elevations-26.jpg
RSVP Plans and Elevations-27.jpg
RSVP Plans and Elevations-29.jpg
RSVP Plans and Elevations-31.jpg
RSVP Plans and Elevations-33.jpg
RSVP Plans and Elevations-35.jpg
RSVP Plans and Elevations-37.jpg
RSVP Plans and Elevations-38.jpg
RSVP Plans and Elevations-39.jpg
RSVP Plans and Elevations-41.jpg
RSVP Plans and Elevations-42.jpg
RSVP Plans and Elevations-43.jpg
RSVP Plans and Elevations-44.jpg
RSVP Plans and Elevations-45.jpg
RSVP Plans and Elevations-46.jpg
RSVP Plans and Elevations-48.jpg
Summary Block
This block is invalid. Please check the block settings and try again.
Featured
Aenean eu leo Quam

Powered by Squarespace